租房資訊
上一張
下一張
北區 進化北路
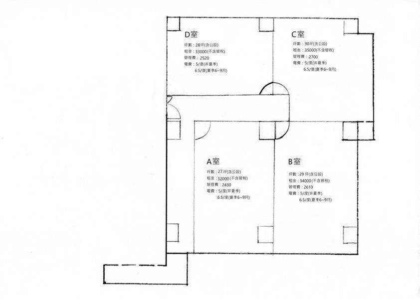
商辦 | 0房0廳0衛0陽台 | 8F | 13F | 電梯大樓 | 2544
34000
元/月
房號:B室29坪 | 子母車:有 | 飲水機:無 | 可寵物:不可寵 | 可抽菸:可;室外 | 短租:不可
水費:包水 | 電費:電5元夏季6.5元元/度 | 管理費:有;2610
立即預約
LINE 詢問
猜你喜歡