租房資訊
北區 進化北路
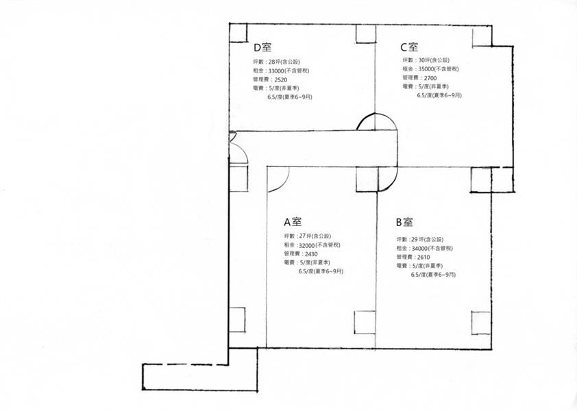
商辦 | 0房0廳0衛0陽台 | 8F | 13F | 電梯大樓 | 2543
32000 元/月
房號:A室27坪(不含管) | 子母車:有 | 飲水機:無 | 可寵物:不可寵 | 可抽菸:可;室外 | 短租:不可
水費:包水 | 電費:電5元夏季6.5元元/度 | 管理費:有;2430
沙發圖示
沙發
書桌圖示
書桌
立即預約 立即預約 LINE詢問 LINE 詢問 猜你喜歡 猜你喜歡